html->com_jshopping->product: product_default.php [START]

Дачный дом с мансардой

Проект № 093-04

093-04
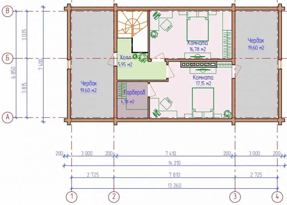
Площадь дома: 144.8 м²
Количество жилых комнат: 3
Пристройки: Терраса / Веранда, Камин, Баня / Сауна
Тип крыши: Двухскатная
Тип материала: Керамическая / Цементно-песчаная черепица, Брус / Бревно
Стиль дома: Русский
Жилая площадь: 56.3 м²
Высота здания: 7.1 м²

Варианты состава проекта

- Планы этажей с мебелью и размерами
- Типовая схема фундаментов
- План чердака с расположением люка и схемами вентиляции
- План кровли с системой водоотведения
- Разрезы, Фасады
- 3D визуализации
- Расход основных материалов
- Планы этажей с мебелью и размерами
- План чердака с расположением люка и схемами вентиляции
- План кровли с системой водоотведения
- Разрезы, Фасады
- 3D визуализации
- Расход строительных материалов
- Выбор типа и разработка фундаментов
- План перекрытий
- Расчёт стропильной системы под ваш климатический р-н
- Узлы и детали
- Спецификации строительных конструкций
- Авторский надзор и консультации на весь период строительства
- Планы этажей с мебелью и размерами
- Типовая схема фундаментов
- План чердака с расположением люка и схемами вентиляции
- План кровли с системой водоотведения
- Разрезы, Фасады
- Расход основных строительных материалов
- План фундаментов
- Схема перекрытий
- Расчёт стропильной системы под ваш климатический р-н
- Пояса и перемычки
- Прогоны, ригели
- Узлы и детали
- Спецификации строительных конструкций
- Авторский надзор и консультации на весь период строительства
- Отопление/Вентиляция (ОВ)
- Водоснабжение/канализация (ВК)
- Электроснабжение
- Сметы
- Монтажные и демонтажные планы
- Планы мебели и сантехнического оборудования
- 3Д визуализации
- Развертки стен, схемы напольных покрытий и потолков
- Схемы теплых полов, вентиляции и кондиционирования
- Разработка мебели под заказ
- Эскизный ландшафтный проект
- Ландшафтный проект "Экономный"
- Ландшафтный проект "Максимальный"
- Дизайн проект тротуарной плитки
Расчёт производится в любой удобной для Вас валюте (RUB, BYN, KZT, USD, AZN)
Адаптация проекта под Ваши требования
Ориентировочная стоимость строительства
(без учёта особенности регионов)
72 400 USD

Краткое описание:

- Здание запроектировано одноэтажным с устройством мансарды и подвала;
- фундаменты ленточные сборно-монолитные из бетона С16/20;
- наружные и внутренние стены: клееный брус хвойных пород толщиной 200мм.
- перекрытия по деревянным балкам;
- пол 1-го этажа и подвала выполнены утеплёнными, по грунту;
- кровля запроектирована стропильная с покрытием глиняной черепицей.

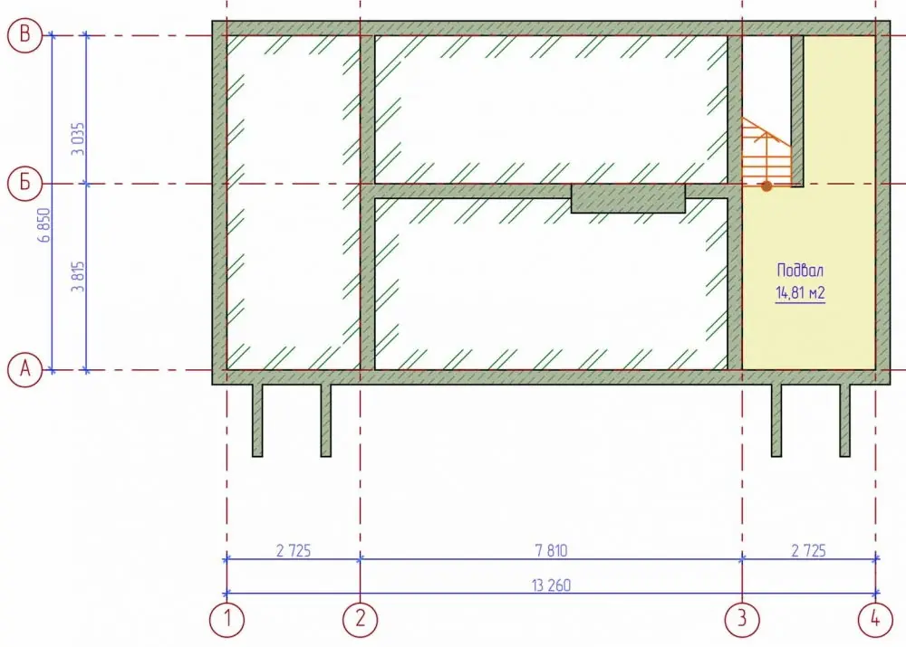
План подвала дачного дома. Проект №093-04
План подвала дачного дома. Проект №093-04
План 1-го этажа дачного дома. Проект №093-04
План 1-го этажа дачного дома. Проект №093-04
План мансардного этажа дачного дома. Проект №093-04
План мансардного этажа дачного дома. Проект №093-04
    Проект
    № 093-04

    Дачный дом с мансардой

  • Общая площадь 144.8 м²
  • Жилая площадь 56.3 м²
  • Комнат 3
  • Высота здания 7.1 м
  • Уклон кровли 35, 40°
  • Высота этажа до перекрытий
  • первый этаж 2,5 м
  • второй этаж 0,9 - 2,5 м
  • Фундамент
  • ленточный

    Толщина: 300 мм

    Расход: 32,7 м³

  • Наружные стены
    несущая часть
  • деревянный брус

    Толщина: 200 мм

    Расход: 54,74 м³

  • отделка
  • дерево
  • Внутренние стены
    несущие
  • деревянный брус

    Толщина: 200 мм

  • перегородки
  • деревянный брус

    Толщина: 100 мм

  • Перекрытия
  • По деревянным балкам
  • Кровля
  • керамическая черепица

    дополнительно заказывается у конструктора (раздел КР)

    Расход: 186,6 м³

К сожалению, история разработки данного проекта не сохранилась...

Заказ проекта

Мы разработали составы проектов в виде пакетов для упрощения понимания впервые столкнувшихся со стройкой (на основании опыта проектирования более 15-ти лет)

Пакет Минимальный - это архитектурный проект, обьема информации которого достаточно для согласования в местных органах власти и строительства профессиональными бригадами. 

Пакет Оптимальный - архитектурный проект + наиболее часто заказываемые и необходимые подразделы конструктивных решений (по нашему опыту).

Пакет Индивидуальный - для продвинутых пользователей.

 

Вариантность:

При заказе нового проекта делаем столько набросков, сколько надо для того, чтобы определимться с планировкой. Предоставляю несколько грубых набросков, отсылаю вам. Вы выбираете в какую сторону двигаемся. Выбранный вариант причёсываем, накладываем конструкции и получается ещё несколько вариантов, но более проработанные под выбранную идею. Тот архитектор, кто предлагает один единственный вариант - не продумывает нюансы!! Ведь чем больше вариантов продуманно, тем оптимальнее получается планировка.

 

Для РБ, РФ, Казахстана, Азербайджана!
Проект коттеджа, дачного дома, бани можно заказать по телефону +375 29 722-51-73. (WhatsApp/Viber/Telegramm), e-mail (Этот адрес электронной почты защищён от спам-ботов. У вас должен быть включен JavaScript для просмотра.), или пишите мне в форму для связи.


Заказ индивидуального проекта:
Предварительно связавшись со мной по телефону, Вы отправляете на электронную почту исходные данные по проекту, пожелания в любом виде (ссылка на сайт, сканированный или сфотографированный рисунок от руки и т.д.).

Далее мы с Вами обсуждаем детали по e-mail (Этот адрес электронной почты защищён от спам-ботов. У вас должен быть включен JavaScript для просмотра.) или телефону.

По мере выполнения различных этапов, варианты будут отправляться вам для ознакомления, внесения изменений и согласования.

Для оформления вашего проекта необходима следующая информация:

  1. Ф.И.О. владельца участка
  2. Полный адрес участка
  3. Кадастровый номер участка

Информация по пересылке "Белпочтой" или электронной почтой:

  1. E-mail: Проект с подписью и свидетельством ИП (если потребуют в архитектуре) отправляется вам на электронную почту в формате PDF.
  2. "Белпочтой": Высылаете адрес доставки и ФИО получателя. Проект высылается 3-мя копиями

Оплата осуществляется переводом на расчётный счёт в любом отделении банка в белорусских рублях.
Отсылка проекта: в течении нескольких часов после подтверждения перевода.
Для подтверждения перевода мне необходим будет скан/фото чека о оплате.

Заказ готового проекта для РФ и стран СНГ:
Для заказа готового проекта Вам необходимо уточнить № проекта. С вами заключается договор, который высылается на стадии договорённости.
Проект высылается вам на электронку в формате PDF после предварительной оплаты.

Заказ готового проекта с изменениями РФ и стран СНГ:
Для заказа изменённого проекта Вам необходимо уточнить № проекта.
С вами заключается договор, который высылается на стадии договорённости.
Далее вы указываете изменения в проекте, пожелания в любом виде (точное описание, сканированный или сфотографированный подправленный проект,).
Проект высылается вам на электронку в формате PDF.

Оплата для РФ
Оплата осуществляется переводом на расчётный счёт в любом отделении банка в долларах $ США (по курсу нац. банка на день оплаты).

html->com_jshopping->product: product_default.php [END]

Остались вопросы?

Задайте их нам и мы обязательно ответим!

Контакты

Часы работы

9.00-20.00 по МСК, без  выходных

Адрес

г. Брест, Бульвар Шевченко, 
д. 4, офис 317

modules->mod_modblock5670944374909->mod_modblock5670944374909.php: [START]html->mod_modblock5670944374909: default.php [START]
html->mod_modblock5670944374909: default.php [END]modules->mod_modblock5670944374909->mod_modblock5670944374909.php: [END]

Подбор проекта

Площадь дома:

От м2
До м2

Количество жилых комнат:

*спальни + гостинная
От шт
До шт

Этажность:

Пристройки:

Доп. уровни:

Тип крыши:

Тип материала:

Стиль дома:

Яндекс.Метрика